SALE

niseko lodge

3LDK

物件名
niseko lodge
所在地
北海道虻田郡ニセコ町字本通251-21
価格
5,500万円
仲介手数料
売買代金に対して3%+6万円+消費税
敷地面積
496.86㎡(150.04坪)
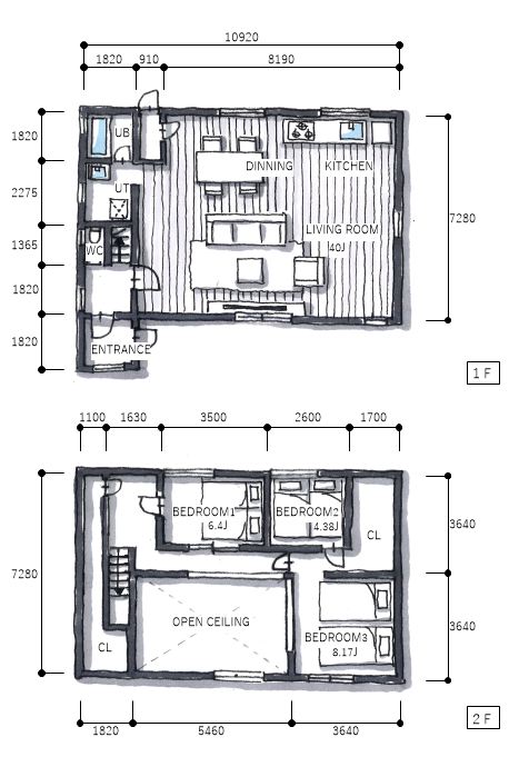
床面積
136.6㎡
間取り
3LDK
築年数
平成10年3月25日新築
建物構造
木造亜鉛メッキ鋼板葺2階建て
設備
上下水、ガス、電気
備考
-
現状
-
取引形態
専任媒介
敷地の権利形態

北海道の人気エリア ニセコ 1階は解放的な40畳のリビング、2階は3ベッドルーム、大勢での利用にオススメ

利便性と資産価値: 飲食店や商店が揃うニセコ町中心部に位置。
グローバルな人気: 海外からも熱視線を浴びるエリア。
圧巻の40帖LDK: 1階は仕切りのない大空間。吹き抜けが開放感を加速させます。
2階のプライベート空間: 独立した3つの寝室を配置。ゲストとの滞在も快適です。

FOLLOW US

新着物件、未公開物件情報など
こちらのLINEお友達追加にて配信中!

CONTACT

お問い合わせはこちら

お問い合わせ