SALE

ICHINOMIYA 平屋

4LDK

物件名
ICHINOMIYA 平屋
所在地
長生郡一宮町一宮366
価格
3,580万円
仲介手数料
売買価格に対して3%+6万円+消費税
敷地面積
442.37㎡
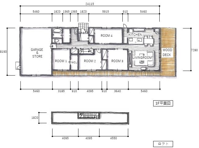
床面積
178.86㎡
間取り
4LDK
築年数
2018年9月
建物構造
木造平屋建
設備
電気・ガス・水道
備考
-
現状
空家
取引形態
専任
敷地の権利形態

一宮海岸が最寄りポイントになる立地
4LDK+ガレージ付き
家族での定住にもオススメ 


FOLLOW US

新着物件、未公開物件情報など
こちらのLINEお友達追加にて配信中!

CONTACT

お問い合わせはこちら

お問い合わせ